
9-26系列离心通风机
产品规格
特点:进行多次研究开发设计,进一步达到了节能、降噪的目的,具有效率高、比A声级小、高效区宽、结构紧凑、运行可靠等优点。
用途:广泛用于锻冶炉及高中压强制通风,亦可用于输送无聊、输送空气等作用。
规格:
风机直径:Φ400~1600mm,
风量:800~82000m?/h,
风压:3000~16000Pa
用途:广泛用于锻冶炉及高中压强制通风,亦可用于输送无聊、输送空气等作用。
规格:
风机直径:Φ400~1600mm,
风量:800~82000m?/h,
风压:3000~16000Pa
产品概述
??9-26系列高压离心通风机,一般用于锻冶炉及高压强制通风,并广泛用于输送物料,输送空气和其他不自燃的、对人体无害的、对钢铁材料无腐蚀性的气体。气体内不许有粘性物质,所含尘土及硬质颗粒物不大于150mg/m。气体温度不得超过80℃。对易燃易爆气体的输送,叶轮可用铝合金加工,以防在运转中引起火花,电机配用隔爆型电机。其性能参数均可与普通风机相同。
??9-26系列高压离心通风机可制成右旋转和左旋转两种型式。从电动机一侧正视,叶轮顺时针旋转,称为右旋风机,以“右”表示;叶轮逆时针旋转,称为左旋风机,以“左”表示。风机的出口位置,以机壳的出风口角度表示。
??9-26系列高压离心通风机为单吸入式,有No.4~16共13个机号,其中No.4~6.3传动方式为A式传动,No.7.1~16传动方式为D式传动。
??9-26系列高压离心通风机可制成右旋转和左旋转两种型式。从电动机一侧正视,叶轮顺时针旋转,称为右旋风机,以“右”表示;叶轮逆时针旋转,称为左旋风机,以“左”表示。风机的出口位置,以机壳的出风口角度表示。
??9-26系列高压离心通风机为单吸入式,有No.4~16共13个机号,其中No.4~6.3传动方式为A式传动,No.7.1~16传动方式为D式传动。
产品参数及说明
9-26系列高压离心通风机性能参数与选用配置表(1)

9-26系列高压离心通风机性能参数与选用配置表(2)

9-26系列高压离心通风机性能参数与选用配置表(3)

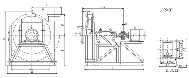
9-26系列No.4~6.3A高压离心通风机安装及外形图

9-26系列No.4~6.3A高压离心通风机安装及外形表

9-26系列No.7.1~16A高压离心通风机安装及外形图

9-26系列No.7.1~16A高压离心通风机安装及外形表

其他产品