
SDS系列射流风机
产品规格
规格:
风机直径:Φ400~1600mm,
出口风速:24~38m/s
轴向推力:300~1600N
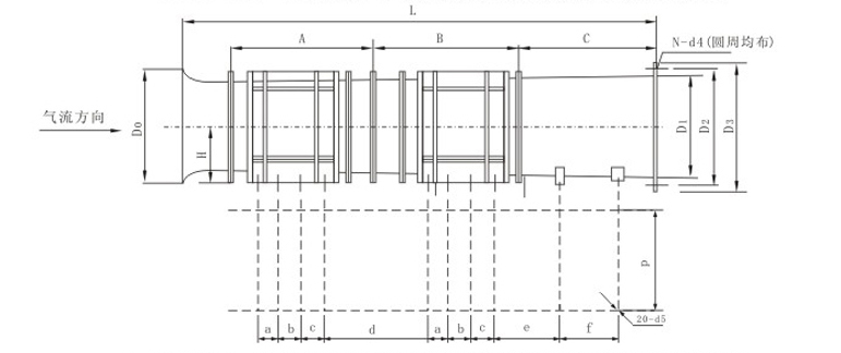
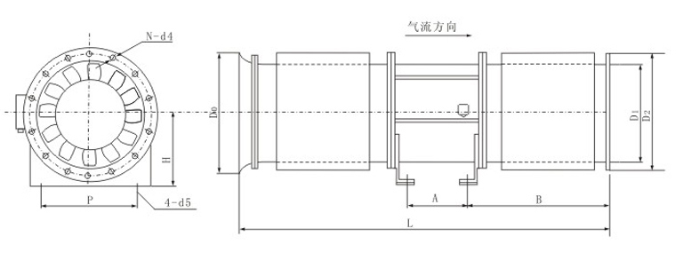
SDS系列射流式通风机外形尺寸图(mm)

SDS系列单向射流通风机性能参数表

SDS系列单向射流通风机性能参数表

SDS(R)系列双向射流通风机性能参数表

SDS(R)系列双向射流通风机性能参数表

2SDS型隧道对旋轴流通风机
2SDS隧道对旋周六通风机性能参数表

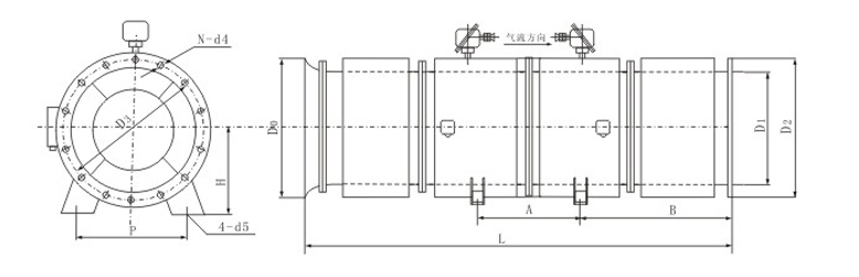
2SDS-50A~125隧道对旋轴流通风机外形图

2SDS-50A~125隧道对旋轴流通风机外形尺寸表

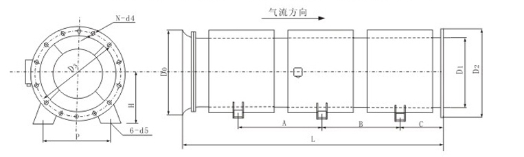
2SDS-140~160隧道对旋轴流通风机外形图

2SDS-140~160隧道对旋轴流通风机外形尺寸表

2SKL-80~125型动叶可调隧道对旋轴流通风机外形图

2SKL-80~125型动叶可调隧道对旋轴流通风机外形尺寸表

2SKL-140~180型动叶可调隧道对旋轴流通风机外形图

2SKL-140~180型动叶可调隧道对旋轴流通风机外形尺寸表

B2SDS型防爆隧道对旋轴流通风机
B2SDS型防爆隧道对旋轴流通风机性能表

B2SDS-60~110型防爆隧道对旋轴流通风机外形图

B2SDS-60~110型防爆隧道对旋轴流通风机外形尺寸表

3SDS型隧道三级串联轴流通风机
3SDS型隧道三级串联轴流通风机性能表

3SDS-71~180型隧道三级串联轴流通风机外形图

3SDS-71~180型隧道三级串联轴流通风机外形尺寸表

SDS型动叶可调隧道单级轴流通风机
SDS型动叶可调隧道单级轴流通风机性能表

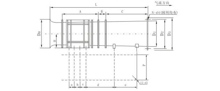
SDS-90~140型动叶可调隧道单级轴流通风机外形图

SDS-90~140型动叶可调隧道单级轴流通风机外形尺寸表

SDS-160~200型动叶可调隧道单级轴流通风机外形图(左)
SDS-160~200型动叶可调隧道单级轴流通风机外形尺寸表(右)

SLFT型隧道子午加速轴流通风机性能表

SLFT-160~200型隧道子午加速轴流通风机外形图

SLFT-160~200型隧道子午加速轴流通风机外形尺寸表

SLFT-40~140隧道子午加速轴流通风机外形图

SLFT-40~140隧道子午加速轴流通风机外形尺寸表